Andelsboligforeningen har 16 huse

2 x boliger a’ 67,5 kvm2

6 x boliger a’ 87,0 kvm2

2 x boliger a’ 93,0 kvm2

6 x boliger a’ 99,0 kvm2

 

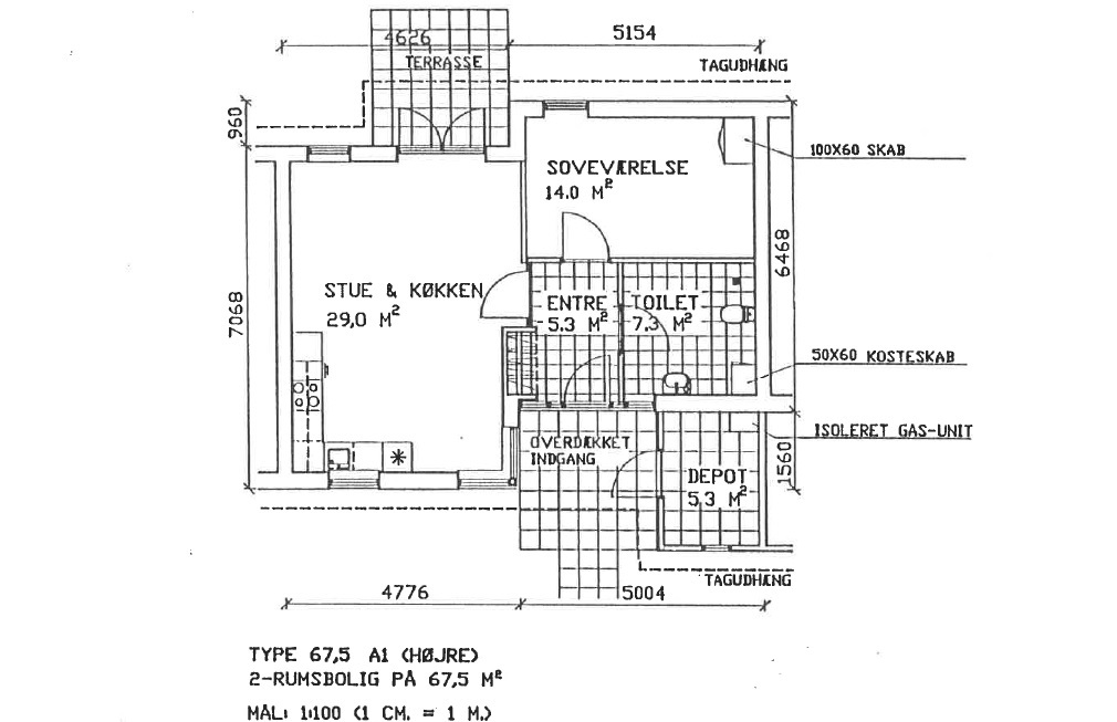
Bolig 1

67,5 km2
Indeholdende køkken i åben forbindelse med stue, soveværelse, toilet, entre samt redskabsrum

Bolig 2

87 km2
Indeholdende køkken i åben forbindelse med stue, soveværelse, værelse, toilet, entre samt depotrum

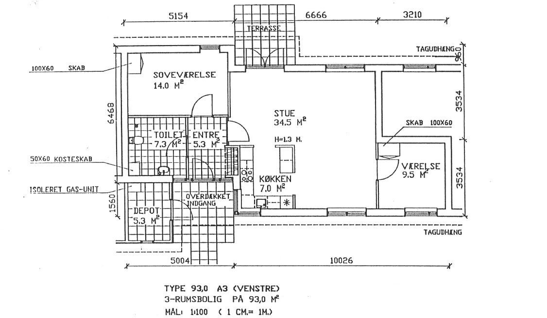
Bolig 3

93 km2
Indeholdende køkken i åben forbindelse med stue, soveværelse, værelse, toilet, entre samt depotrum

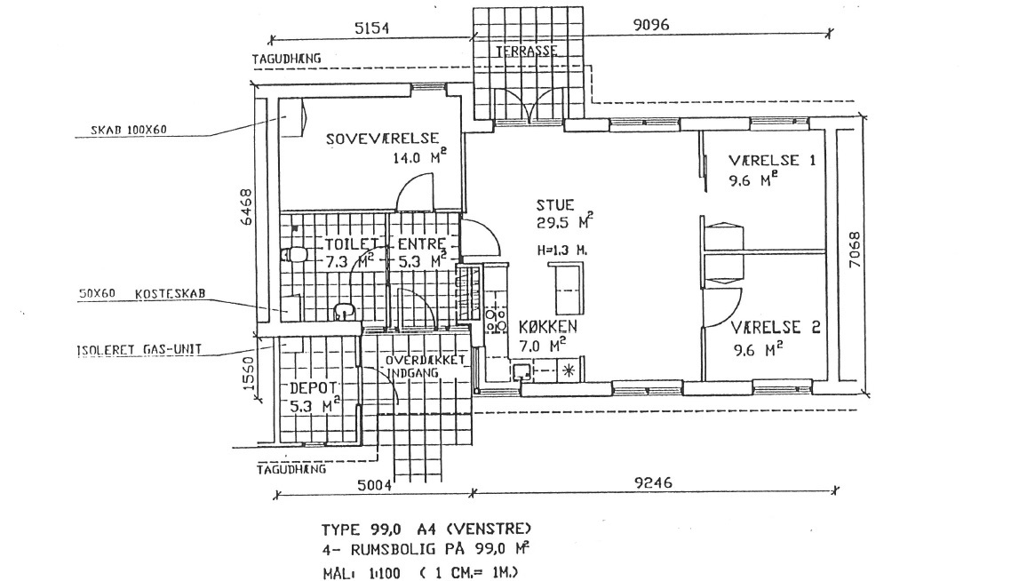
Bolig 4

99 km2
Indeholdende køkken i åben forbindelse med stue, soveværelse, 2 værelser, toilet, entre samt depotrum